房屋戶型圖,在日本我們尋找房屋或設計自己的家時經常會看到。戶型圖上描繪了每個物件中房間與設備的位置關係。本文將以簡單易懂的方式,說明日本房屋內部戶型圖的基本概念以及閱讀時應注意的重點。
什麼是房屋戶型圖?
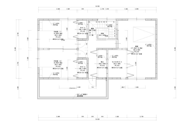
房屋戶型圖是將建築物依照樓層分開,並以俯視角度繪製的平面圖。戶型圖除了標示各房間的分隔方式外,還會描繪廚房、客廳、玄關等空間的位置關係,以及各種設備的配置情形。由於戶型圖的繪製並沒有固定規則,因此標示的細緻程度、比例尺的設定,以及所使用的線條樣式等,都由繪圖者自由決定。一般來說,戶型圖多由不動產公司或建築事務所負責製作。
本文將詳細說明戶型圖所能提供的豐富物件資訊,以及閱讀平面圖的方法。希望能幫助您在尋找理想物件時,發揮最大的參考價值。

在進入戶型圖的詳細說明之前,這裡先介紹一下容易混淆的「平面圖」。
如前所述,戶型圖是用來了解每個空間的位置、用途以及大致面積等房屋格局的圖面。而平面圖則是在圖紙上,將每一層樓從地板起某一固定高度做水平剖切後所繪製的圖,會標示出精確的比例尺和尺寸。透過閱讀平面圖,可以掌握像窗戶大小、安裝位置等更細緻的物件資訊。
也就是說,戶型圖主要用來了解房間的配置與格局,而平面圖則能進一步掌握房間的實際尺寸和比例。

從戶型圖中我們可以了解到什麼?
戶型圖是一種能讓人直觀掌握物件內部各種信息的圖面,非常適合用來了解住宅的基本資訊。具體可以掌握的資訊有以下兩點:
・房間與設備的配置
・生活動線
從戶型圖中,可以知道廚房、客廳、餐廳、玄關、廁所、浴室等在物件內的具體位置。此外,觀察窗戶的位置、數量和方位,也能推測房子的通風情況,以及從早到晚陽光如何照射進室內。像這樣,即使不實際前往參觀,也能透過間取圖大致掌握住宅的格局和居住感受,這正是戶型圖的一大優點。
從戶型圖中,也可以想像住進這個物件後,實際的生活會是什麼樣子。例如,家具和家電可以放在哪裡、收納空間的位置,以及打掃或洗衣等家務動線是否便利等,都能從圖面上判斷。在申請看屋之前,建議先透過戶型圖,想像一下這個房子對自己或家人來說是否好用、方便。
戶型圖中常見的簡稱
在日本房屋的戶型圖中會使用各種簡稱。事先了解下表所列的簡稱及其含義,能幫助你更深入地理解間取圖。


